岐阜の不動産情報サイト|有限会社ディベロップメントブレーン 有限会社ディベロップメントブレーン

  • 新規会員登録
  • ご利用規約
  • プライバシーポリシー
  • 採用情報

土地探しから、施工まで・不動産に関することならディベロップメントブレーンにお任せください。

  • ホーム
  • おすすめ物件
  • お客様の声
  • スタッフ紹介
  • 会社概要
  • お問い合わせ
  • ログイン
物件情報最終更新日時:2026/03/06 14:38

ホーム| 買う 一戸建てをエリアで検索 | 検索結果 | 詳細

  • 買う
  • 売る
  • 借りる
  • 貸す

買う

一戸建ての詳細

ひとつ前に戻る

お気に入り物件に登録する

資料請求・お問い合わせ

このページをプリントする

FelidiaGarden羽島郡笠松1号 DK00075326 オススメ 新築 価格改定

現在地/最寄のバス停、駅

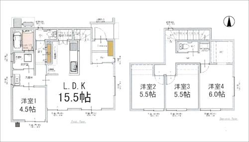
間取り/建物面積

地上階層

築年月

価 格

羽島郡笠松町田代

名鉄竹鼻・羽島線 柳津 徒歩15分

4LDK

96.05㎡

(約29.055坪)

2階

2025年01月築

2,980

写 真

間取図

写真 写真

物件の詳細情報

所在地
羽島郡笠松町田代
価格
2,980 万円
最寄のバス停、駅
名鉄竹鼻・羽島線 柳津 徒歩15分  
土地面積
156.17㎡(約47.241坪)
建物面積
96.05㎡(約29.055坪)
建ぺい率
60%
容積率
180%
築年月
2025年01月築
建築構造
木造
駐車場
有
現況
完成済
地上階層
2階
都市計画
市街化区域
地目
宅地
接道状況1
東  4.5m
用途地域
1種住居
接道状況2
地勢
引渡時期
相談
通学区(小学校)
松枝小学校
通学区(中学校)
笠松中学校
    備考
※中部電力、公営水道、本下水(個別LPG)
※オール電化
※システムキッチン、食器洗浄機、シャワートイレ、3口IHヒーター、複層ガラス
※ウォークインクローゼット、玄関電子錠:リモコンキー、1階掃出窓:電動シャッター

※各項目の内容は保証するものではありません。学区名は各市町村の教育委員会でご確認下さい。

スタッフよりおすすめポイント
●価格変更しました!税制優遇のある長期優良住宅です
●火災保険もお安くなる省令準耐火構造です
●駐車3台可能な4LDKになります
●ぜひ一度現地をご覧ください

周辺地図

グーグルマップで確認

2026/03/09 現在

登録件数

123 件

岐阜のマンション情報ならお任せください。豊富な物件からぴったりのマンションをお探しいただけます。

売る

ご売却の流れ

売却相談について

無料査定を依頼する

借りる

借りたい方はこちら

貸す

貸したい方はこちら

岐阜の不動産サイト

有限会社ディベロップメントブレーン

岐阜市羽島郡岐南町野中二丁目1番地

googlemapでご確認

AM9:00~PM7:00

水曜日

058-249-4181

058-249-4182

info@net-brain.jp

メールでのお問い合わせはこちら

https://net-brain.net

ホームページは、お使いのスマートフォンからもご覧頂けます。

新規会員登録|利用規約|プライバシーポリシー

ホーム | 買う | 売る |  貸す | 会社概要 |  スタッフ紹介 | サイトマップ | お問い合わせ

売却をお考えの方へ |  土地・物件を貸したい方へ |  ご購入をお考えの方へ

岐阜の不動産情報サイト ディベロップメントブレーン

TEL/058-249-4181 E-mail/info@net-brain.jp

Copyright (C) 2003 - 2017 Development Brain. All Rights Reserved.