岐阜の不動産情報サイト|有限会社ディベロップメントブレーン 有限会社ディベロップメントブレーン

  • 新規会員登録
  • ご利用規約
  • プライバシーポリシー
  • 採用情報

土地探しから、施工まで・不動産に関することならディベロップメントブレーンにお任せください。

  • ホーム
  • おすすめ物件
  • お客様の声
  • スタッフ紹介
  • 会社概要
  • お問い合わせ
  • ログイン
物件情報最終更新日時:2026/05/18 10:42

ホーム| 借りる エリアで検索 | 検索結果 | 詳細

  • 買う
  • 売る
  • 借りる
  • 貸す

借りる

詳細

ひとつ前に戻る

お気に入り物件に登録する

資料請求・お問い合わせ

このページをプリントする

岐阜市須賀2 貸ガレージ G-BASE DC00075404 new オススメ

現在地/最寄のバス停、駅

建物種別

間取り/建物面積

敷金/礼金

賃 料

岐阜市須賀2丁目

岐阜バス 北鶉 徒歩8分

その他

/

18.2㎡

(約5.506坪)

なし/

なし

3.5

写 真

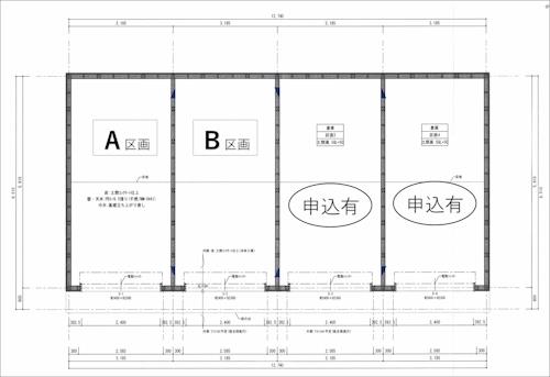
間取図

写真 写真 写真 写真 写真

物件の詳細情報

所在地
岐阜市須賀2丁目
賃料
3.5 万円
最寄のバス停、駅
  岐阜バス 北鶉 徒歩8分
管理費
共益費
敷金
なし
礼金
なし
保証金
なし
更新料
なし
保険料等
要  
建物面積
専有面積
18.2㎡ (約5.506坪)
バルコニー向き
間取り
建築構造
木造
部屋向き
築年月
2026年06月築
所在階
1階
現況
建築中
土地面積
用途地域
1種住居
建ぺい率
最適用途
容積率
地目
宅地
接道状況1
東  8.1m
総戸数
4戸
接道状況2
北  4.0m
駐車場
給湯
設備
オプション
引渡時期
相談 令和8年6月完成予定
取引態様
一般
通学区(小学校)
市橋小学校
通学区(中学校)
精華中学校
    備考
※保証会社加入要(全保連、初回保証料は貸主負担)
※賃料1ヶ月はフリーレント
※3年未満の退去の場合、違約金あり(賃料の5ヶ月分)
※電動シャッター、防犯カメラ、Wi-Fi完備、タイマー付きスポットライト、タイマー付きコンセント

※各項目の内容は保証するものではありません。学区名は各市町村の教育委員会でご確認下さい。

スタッフよりおすすめポイント
●全4区画のスタイリッシュな新築の貸ガレージです
●Wi-Fi、電動シャッター、防犯カメラ等の充実設備!
●前面道路約8.1mで駐車もラクラクです

周辺地図

グーグルマップで確認

2026/05/19 現在

登録件数

114 件

岐阜のマンション情報ならお任せください。豊富な物件からぴったりのマンションをお探しいただけます。

売る

ご売却の流れ

売却相談について

無料査定を依頼する

借りる

借りたい方はこちら

貸す

貸したい方はこちら

岐阜の不動産サイト

有限会社ディベロップメントブレーン

岐阜市羽島郡岐南町野中二丁目1番地

googlemapでご確認

AM9:00~PM7:00

水曜日

058-249-4181

058-249-4182

info@net-brain.jp

メールでのお問い合わせはこちら

https://net-brain.net

ホームページは、お使いのスマートフォンからもご覧頂けます。

新規会員登録|利用規約|プライバシーポリシー

ホーム | 買う | 売る |  貸す | 会社概要 |  スタッフ紹介 | サイトマップ | お問い合わせ

売却をお考えの方へ |  土地・物件を貸したい方へ |  ご購入をお考えの方へ

岐阜の不動産情報サイト ディベロップメントブレーン

TEL/058-249-4181 E-mail/info@net-brain.jp

Copyright (C) 2003 - 2017 Development Brain. All Rights Reserved.